物件情報:WAKO川本ビル | 2F

WAKO川本ビル
WAKO川本ビル
WAKO川本ビル
WAKO川本ビル
WAKO川本ビル
WAKO川本ビル
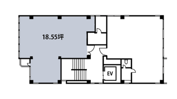
物件名 WAKO川本ビル 部屋番号 2F 部屋タイプ 事務所・店舗 専有面積 18.55坪
構造・規模 鉄筋コンクリート造 地上9階地下1階建 築年月 1974年5月 総戸数 駐車場
所在地 〒730-0802 広島県広島市中区本川町2丁目1−9 交通 広電「本川町電停」徒歩2分
家賃
共益費 敷金 礼金
その他費用 更新料 仲介手数料 契約期間 3年
入居時期 相談 火災保険 要 特徴
設備 エアコン 個別空調 機械警備 エレベーター 
備考