| 部屋タイプ | 事務所・店舗 |
|---|---|
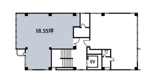
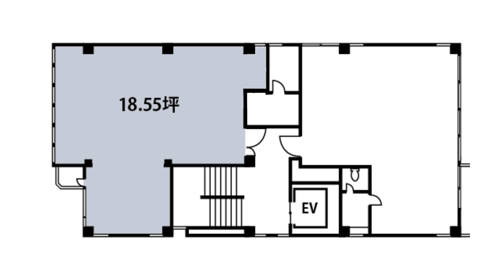
| 専有面積 | 18.55坪 |
| 火災保険 | 要 |
| 契約期間 | 3年 |
| 入居時期 | 相談 |
| 所在地 | 〒730-0802 広島県広島市中区本川町2丁目1−9 |
| 交通 | 広電「本川町電停」徒歩2分 |
| 構造・規模 | 鉄筋コンクリート造 地上9階地下1階建 |
| 築年月 | 1974年5月 |
| 設備 | エアコン 個別空調 機械警備 エレベーター |
WAKO川本ビルの周辺の魅力
徒歩1分圏内にコンビニがあるから便利。その他、飲食店も多数あります。
東に本川が流れるリバーサイドの好立地。百貨店やその他大型商業施設や公共機関など広島の中心地ならではの利便性も兼ねそろえます。
